西温无敌海景独立屋楼花
2023-01-02
![]()
【地址】:2888 Rodgers Crk Ln, West Vancouver, BC V7S 3H9
点击上图左下方的小方块,可在地图和卫星航拍图之间相互转换
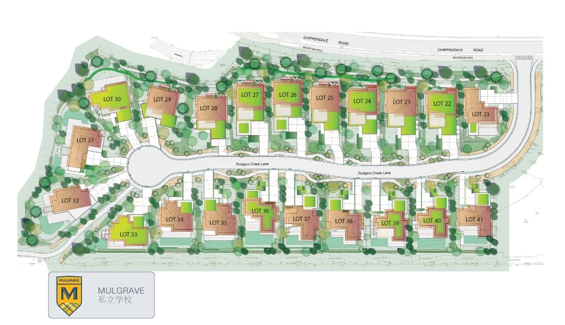
【项目名】:Mulgrave Villa
Mulgrave Villa 项目开发视频
【项目简介】:
占地总面积:154,203 平方英尺(共 21 个地块,每个地块面积从 6,975 到 9,139 平方英尺不等)
建筑总面积:73,886 平方英尺(共 21 栋房屋室内建筑面积从 3,300 到 4,100平方英尺不等)
$418万起,此项目预计在2023年建成交房

总共21栋,已售出7栋,先到先得!

Mulgrave Villa 地产项目坐落于美丽的西温哥华市,拥有21套无敌海景独立屋,依山而建,面朝大海,每一栋都有180度的观景,全开折叠门以及大面积观景窗,把现代建筑的舒适奢华与西温的自然美景融为一体,可让您身处在一个舒适的室内环境中拥抱山水,俯瞰大温,尽享西温的四季美景。
室内的舒适配置包括:中央空调,HRV新风系统等。在这里,您可以充分享受大自然美景与健康积极的生活方式。

这个项目具有得天独厚的地理优势,位于西温Mulgrave私校West Bay学区。

目前有一栋挂在MLS上售卖:R2740280,2850
RODGERS CREEK LANE

点击上图看Mulgrave
Villa官网

项目地南边毗邻温哥华著名的Mulgrave私立学校,通过步行小路,走路2分钟即可到达。步行到另一所西温的著名Collingwood私校也只需15分钟。这两所私校年年在大温排名中都处于顶尖位置。
从项目地出发开车至西温Park
Royal商圈只要大约9分钟车程,往西开车10分钟寄到马蹄湾轮渡码头,到温哥华市中心也只需20分钟车程,到 Cypress滑雪场12分钟,公校校区是排名第一的West
Bay小学(1/927),Rockridge高中(50/252)。一个不可多得的风水宝地,是追求精英教育家庭的首选!
该社区拥有一览无余的美丽海景,从温哥华市中心到佐治亚海峡的壮丽景色都清晰可见。周边均是新建成和已出售的豪华公寓和独立别墅。

在为数不多的21栋豪华海景房项目中,每一栋都绝无仅有,皆为开发团队的品质之作,从功能设计到建筑材料均采用绿色生态建筑标准,节能环保至每一个细节。可根据个人需要,量身定制室内设计。

房屋建筑设计有知名建筑设计公司 Ekistics Architecture 精心规划,外观采用了时下流行的西海岸现代风,室内户型设计方正有致,空间规划宽敞开阳,室内与户外呼应,呈现出令人叹为观止的西岸建筑精华设计,实属全温哥华地区凤毛麟角的居住艺术珍品。
安居此宅,您即可坐拥山海,也能享受到西温的便利都市生活。

入住西温顶级学区房的珍贵机会,一定不要错过!